INTERIEURONTWERP | AANBOUW | HEEMSTEDE
Dit betreft een project voor een hoekwoning uit 1950 in Heemstede, waarvoor we onderzoek hebben gedaan naar een mogelijke aanbouw die past binnen de beperkingen van het bestemmingsplan.
De klant heeft specifieke wensen voor een ruime keuken en een grotere hal, wat een uitdaging is voor de indeling van de woonruimte.
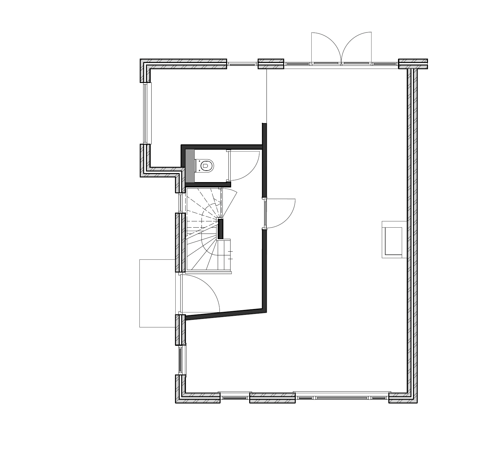
Het project is in schetsontwerpfase. In deze fase zijn verschillende opties verkend voor een functionele en ruimtelijke indeling van de woning. De mogelijke aanbouw zorgt voor een ruime entree en keuken. Door de trap en doorgang naar de woonkamer te wijzigen ontstaat er een fijne zithoek meer gericht op de haard.
Opdrachtgever:
Particulier
Locatie:
Heemstede
Ontwerp:
Indeling begane grond met aanbouw.
Fase:
Schetsontwerp 2023









